台州房地产网 > 台州二手房
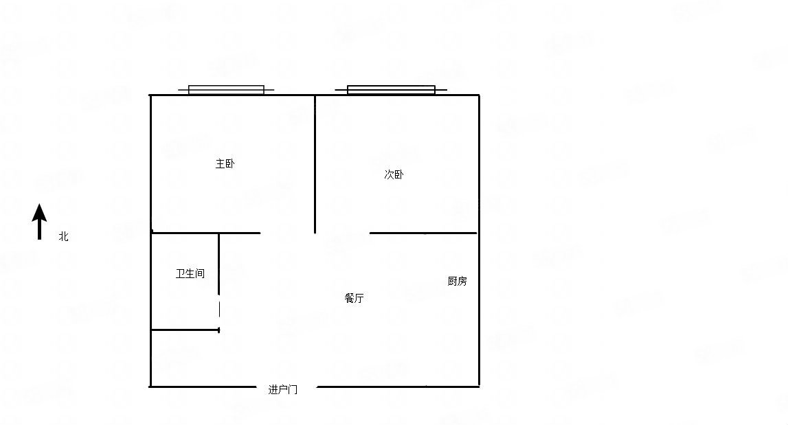
    锦江百货港湾花园小高层2室1厅1卫43㎡
    浏览:人次 2022/8/19 9:07:25
  • 建筑面积:
  • 43㎡
  • 户型:2室1厅1卫
  • 房产类型:
  • 小高层
  • 朝向:南北
  • 总 层 次:
  • 11层
  • 层次:低层
  • 建造时间:
  • 待核查
  • 装修:精装修
  • 土地性质:
  • 商品房,70年产权
  • 证件:满二年
  • 占地面积:
  • 待测量
  • 车库:待查待测
  • 所属小学:
  • 未知
  • 中学:未知
  • 方位:
  • 锦江百货
  • 地址:
  • 未登记
    配套设施

物业类型:普通住宅

    周边环境

暂无介绍

    详细描述

联系方式:房金眼房产经纪景元西苑店蔡超群,13586097850,【税费】:产权清晰,业主换房急售.
1、业主由于要换房,所以着急出售此套房子,寻找诚意买家。2、业主配合随时看房,欢迎对房子有意者前来看房。

(联系时请说明来自《台州房地产网》

    同区位房
    同价位房
    精彩推荐
关于我们 | 免责声明 | 联系我们 | 视频中心
Copyright © 台州房地产网 浙ICP备2024070870号-1 浙ICP备2024070870号-2 浙ICP备2025151442号-4 All Rights Reserved
技术支持 台州通联网络-台州网站建设-网页设计